Banja Nekretnine

Nazad Dvosobni stan kod Aqva parka
Slobodan

U pitanju je prelepa novogradnja u Vrnjačkoj Banji.

Ukoliko ste u potrazi za mirnim delom za stanovanje i želite da budete blizu Aqva parka ovo je idealna lokacija za Vas.

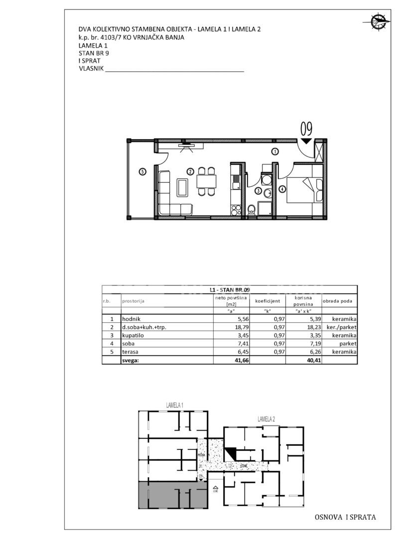
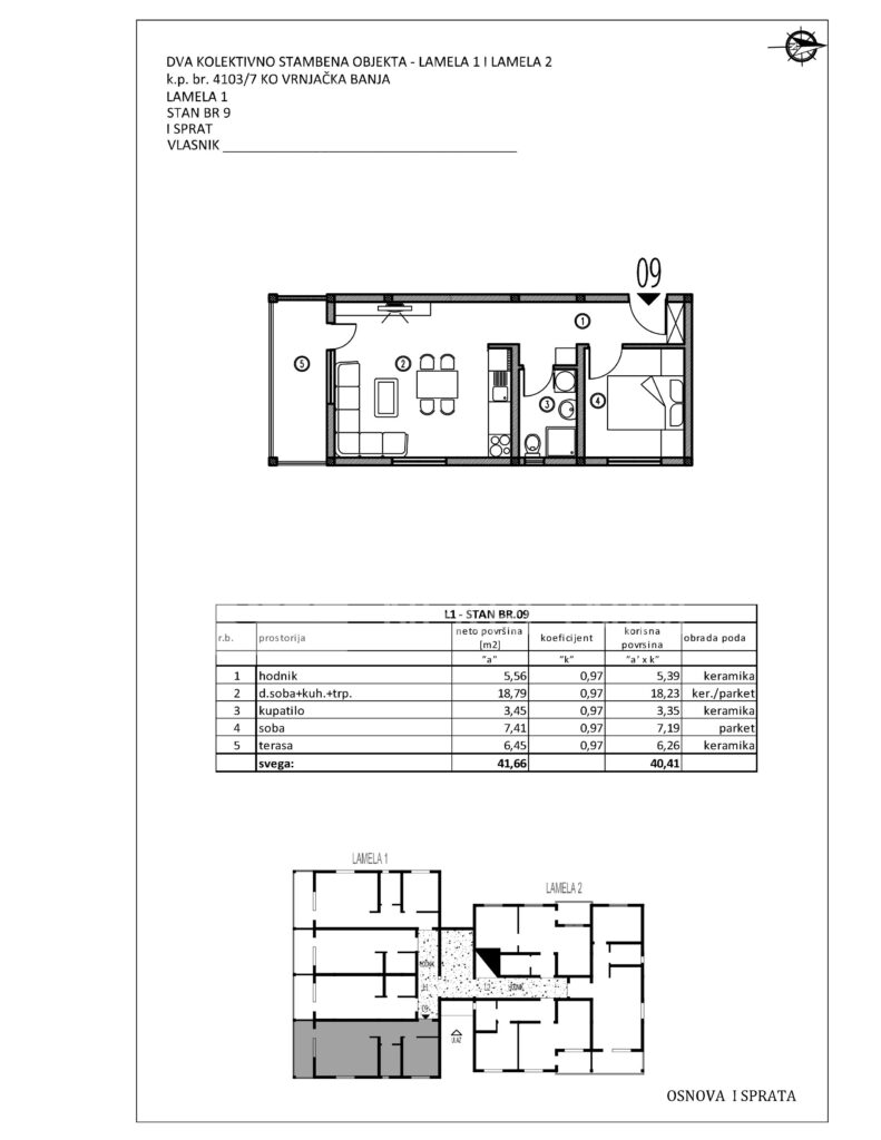
Površina stana je 41 m2, pružajući vam dovoljno prostora za udoban život. Stan poseduje i terasu koja pruža dodatni komfor i ugođaj.

Stolarija drvo, aluminijum, sigurnosna vrata domaće proizvodnje
Termička izolacija kamena vuna
PVC stolarija sa dvoslojnim staklom veoma visoke izolacione sposobnosti i spoljašnjim roletnama
Kvalitetno urađena zvučna i hidroizolacija
Kupatila opremljena italijanskom i španskom keramikom i sanitarijom visoke klase
Podovi od slovenskog hrasta
Parking je zajednički
Zgrada poseduje i lift
Cena po kvadratu iznosi 1.800€+PDV.

Informacije o nekretnini


STRUKTURA:
DVOSOBAN
SPRAT:
PRVI SPRAT
CENA:
81.000 evra
POVRŠINA:
41M2

Video materijali


81.000€

Prodajna cena

Kontaktirajte nas
Vila Borovi

Luksuz nije stvar kvadrata, već osećaja

Ovde ne kupujete stan – kupujete prostor u kome život postaje stil a vi deo te priče.

Ne propustite priliku da postanete deo ovog stambenog kompleksa.

Pogledaj ponudu

Kontaktirajte nas putem broja telefona +381 65 406 5019