Banja Nekretnine

Slatina 2 Vrnjačka Banja | Banja nekretnine

STAMBENA ZGRADA
Opremljenost i tehničke karakteristike

U nastavku vam otkrivamo sve bitne informacije u vezi nove zgrade. Zgrada kod izvora Slatina u Vrnjačkoj Banji ima sledeće karakteristike:

  • Demit fasada, ugrađen fasadni stiropor debljine 15cm
  • Interfonski uređaj
  • Komforan lift
  • Sigurnosna ulazna vrata renomiranog proizvođača, sa visokim stepenom protivprovalnosti i izuzetno dobro zvučno i termički izolovana
  • Unutrašnja vrata sa klasičnim sistemom otvaranja, izrađena od furniranog medijapana
  • Kartice za isključivanje struje
  • PVC stolarija, sa roletnama
  • Hrastov parket
  • Priključak za kablovsku televiziju
  • Kupatila opremljena svom najkvalitetnijom opremom renomiranih proizvođača (ugradna wc-šolja, Geberit vodokotlić, lavabo sa ormarićem i ogledalom, keramička kada sa tuš kabinom), bojler, obezbeđena instalacija za električni sušač u kupatilu
  • U svim prostorijama ostavljena mogućnost ugradnje klima uređaja, izvedene su instalacije i postavljene konzole na fasadi
  • Elektro galanterija iz modularnog programa renomiranog proizvođača
Lokacija

PROMENADA 1100m VRNJAČKE TERME(AQUA PARK) 400m
Slatinska Oaza 2
Sprat: Prizemlje
Broj stana: stan 1
Povrsina: 23,45 m2
Struktura: jednosoban
prodat
Sprat: Prizemlje
Broj stana: stan 2
Povrsina: 28,91 m2
Struktura: dvosoban
prodat
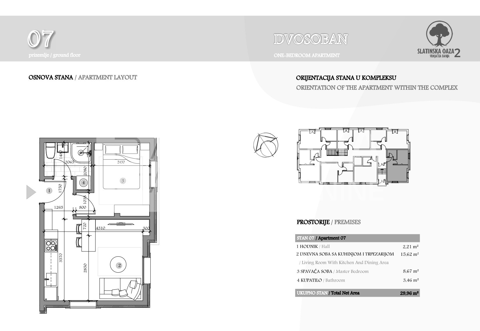
Sprat: Prizemlje
Broj stana: stan 3
Povrsina: 29,96 m2
Struktura: dvosoban
prodat
Sprat: Prizemlje
Broj stana: stan 4
Povrsina: 31,54 m2
Struktura: dvosoban
prodat
Sprat: Prizemlje
Broj stana: stan 5
Povrsina: 28,54 m2
Struktura: dvosoban
prodat
Sprat: Prizemlje
Broj stana: stan 6
Povrsina: 31,54 m2
Struktura: dvosoban
prodat
Sprat: Prizemlje
Broj stana: stan 7
Povrsina: 29,96 m2
Struktura: dvosoban
slobodan
Sprat: Prvi sprat
Broj stana: stan 8
Povrsina: 33,48 m2
Struktura: dvosoban
prodat
Sprat: Prvi sprat
Broj stana: stan 9
Povrsina: 31,90 m2
Struktura: dvosoban
prodat
Sprat: prvi sprat
Broj stana: stan 10
Povrsina: 30,45 m2
Struktura: dvosoban
prodat
Sprat: prvi sprat
Broj stana: stan 11
Povrsina: 33,81 m2
Struktura: dvosoban
prodat
Sprat: prvi sprat
Broj stana: stan 12
Povrsina: 33,56 m2
Struktura: dvosoban
prodat
Sprat: prvi sprat
Broj stana: stan 13
Povrsina: 33,48 m2
Struktura: dvosoban
prodat
Sprat: prvi sprat
Broj stana: stan 14
Povrsina: 31,62 m2
Struktura: dvosoban
prodat
Sprat: drugi sprat
Broj stana: stan 15
Povrsina: 33,48 m2
Struktura: dvosoban
prodat
Sprat: drugi sprat
Broj stana: stan 16
Povrsina: 31,90 m2
Struktura: dvosoban
prodat
Sprat: drugi sprat
Broj stana: stan 17
Povrsina: 30,45 m2
Struktura: dvosoban
prodat
Sprat: drugi sprat
Broj stana: stan 18
Povrsina: 33,81 m2
Struktura: dvosoban
prodat
Sprat: drugi sprat
Broj stana: stan 19
Povrsina: 33,56 m2
Struktura: dvosoban
prodat
Sprat: drugi sprat
Broj stana: stan 20
Povrsina: 33,48 m2
Struktura: dvosoban
prodat
Sprat: drugi sprat
Broj stana: stan 21
Povrsina: 31,62 m2
Struktura: dvosoban
prodat
Sprat: povučeni sprat
Broj stana: stan 22
Povrsina: 61,04 m2
Struktura: trosoban
prodat
Sprat: povučeni sprat
Broj stana: stan 23
Povrsina: 30,45 m2
Struktura: dvosoban
prodat
Sprat: povučeni sprat
Broj stana: stan 24
Povrsina: 35,37 m2
Struktura: dvosoban
prodat
Sprat: povučeni sprat
Broj stana: stan 25
Povrsina: 62,75 m2
Struktura: trosoban
prodat
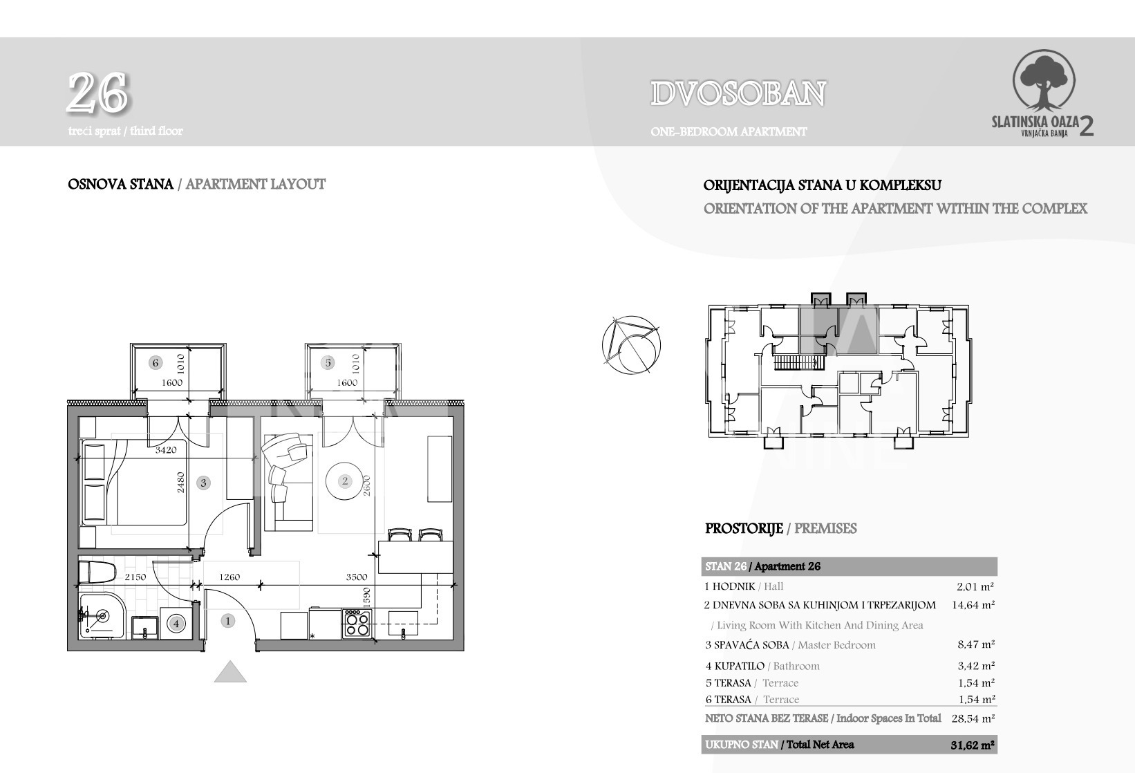
Sprat: povučeni sprat
Broj stana: stan 26
Povrsina: 31,62 m2
Struktura: dvosoban
slobodan
Sprat Broj stana Povrsina Struktura Status Plan
Prizemlje stan 1 23,45 m2 jednosoban prodat Pogledaj
Prizemlje stan 2 28,91 m2 dvosoban prodat Pogledaj
Prizemlje stan 3 29,96 m2 dvosoban prodat Pogledaj
Prizemlje stan 4 31,54 m2 dvosoban prodat Pogledaj
Prizemlje stan 5 28,54 m2 dvosoban prodat Pogledaj
Prizemlje stan 6 31,54 m2 dvosoban prodat Pogledaj
Prizemlje stan 7 29,96 m2 dvosoban slobodan Pogledaj
Prvi sprat stan 8 33,48 m2 dvosoban prodat Pogledaj
Prvi sprat stan 9 31,90 m2 dvosoban prodat Pogledaj
prvi sprat stan 10 30,45 m2 dvosoban prodat Pogledaj
prvi sprat stan 11 33,81 m2 dvosoban prodat Pogledaj
prvi sprat stan 12 33,56 m2 dvosoban prodat Pogledaj
prvi sprat stan 13 33,48 m2 dvosoban prodat Pogledaj
prvi sprat stan 14 31,62 m2 dvosoban prodat Pogledaj
drugi sprat stan 15 33,48 m2 dvosoban prodat Pogledaj
drugi sprat stan 16 31,90 m2 dvosoban prodat Pogledaj
drugi sprat stan 17 30,45 m2 dvosoban prodat Pogledaj
drugi sprat stan 18 33,81 m2 dvosoban prodat Pogledaj
drugi sprat stan 19 33,56 m2 dvosoban prodat Pogledaj
drugi sprat stan 20 33,48 m2 dvosoban prodat Pogledaj
drugi sprat stan 21 31,62 m2 dvosoban prodat Pogledaj
povučeni sprat stan 22 61,04 m2 trosoban prodat Pogledaj
povučeni sprat stan 23 30,45 m2 dvosoban prodat Pogledaj
povučeni sprat stan 24 35,37 m2 dvosoban prodat Pogledaj
povučeni sprat stan 25 62,75 m2 trosoban prodat Pogledaj
povučeni sprat stan 26 31,62 m2 dvosoban slobodan Pogledaj
Vila Borovi

Luksuz nije stvar kvadrata, već osećaja

Ovde ne kupujete stan – kupujete prostor u kome život postaje stil a vi deo te priče.

Ne propustite priliku da postanete deo ovog stambenog kompleksa.

Pogledaj ponudu

Kontaktirajte nas putem broja telefona +381 65 406 5019