Banja Nekretnine

Stambeni objekat 1 i 2 na Raju

STAMBENI OBJEKAT

U pitanju je prelepa novogradnja u Vrnjačkoj Banji.

Ukoliko ste u potrazi za mirnim delom za stanovanje i želite da budete blizu Aqva parka ovo je idealna lokacija za Vas.

 Površine stanova  su od  27 do 41 m2, pružajući vam dovoljno prostora za udoban život. Stanovi imaju i terase koje pružaju dodatni komfor i ugođaj.

Opremljenost i tehničke karakteristike
  • Stolarija drvo, aluminijum, sigurnosna vrata domaće proizvodnje
  • Termička izolacija kamena vuna
  • PVC stolarija sa dvoslojnim staklom veoma visoke izolacione sposobnosti i spoljašnjim roletnama
  • Kvalitetno urađena zvučna i hidroizolacija
  • Kupatila opremljena italijanskom i španskom keramikom i sanitarijom visoke klase
  • Podovi od slovenskog hrasta
  • Parking  je zajednički
  • Zgrada će posedovati i lift
Lokacija

Stambeni objekat 1
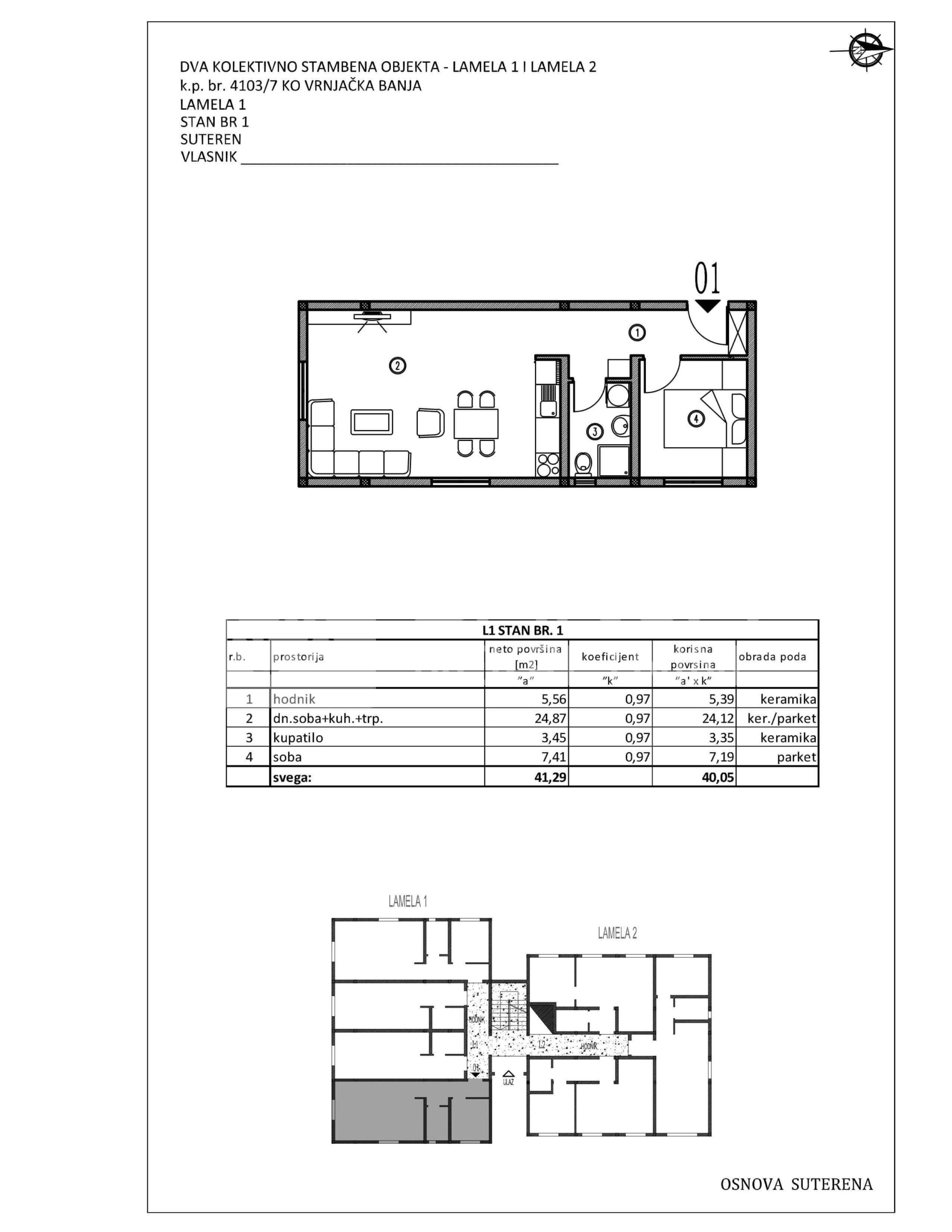
Sprat: suteren
Broj stana: 1
Povrsina: 41,29 m2
Struktura: dvosoban
slobodan
Sprat: suteren
Broj stana: 2
Povrsina: 27,88 m2
Struktura: jednosoban
slobodan
Sprat: suteren
Broj stana: 3
Povrsina: 27,88 m2
Struktura: jednosoban
slobodan
Sprat: suteren
Broj stana: 4
Povrsina: 41,29 m2
Struktura: dvosoban
slobodan
Sprat: prizemlje
Broj stana: 7
Povrsina: 28,03 m2
Struktura: jednosoban
slobodan
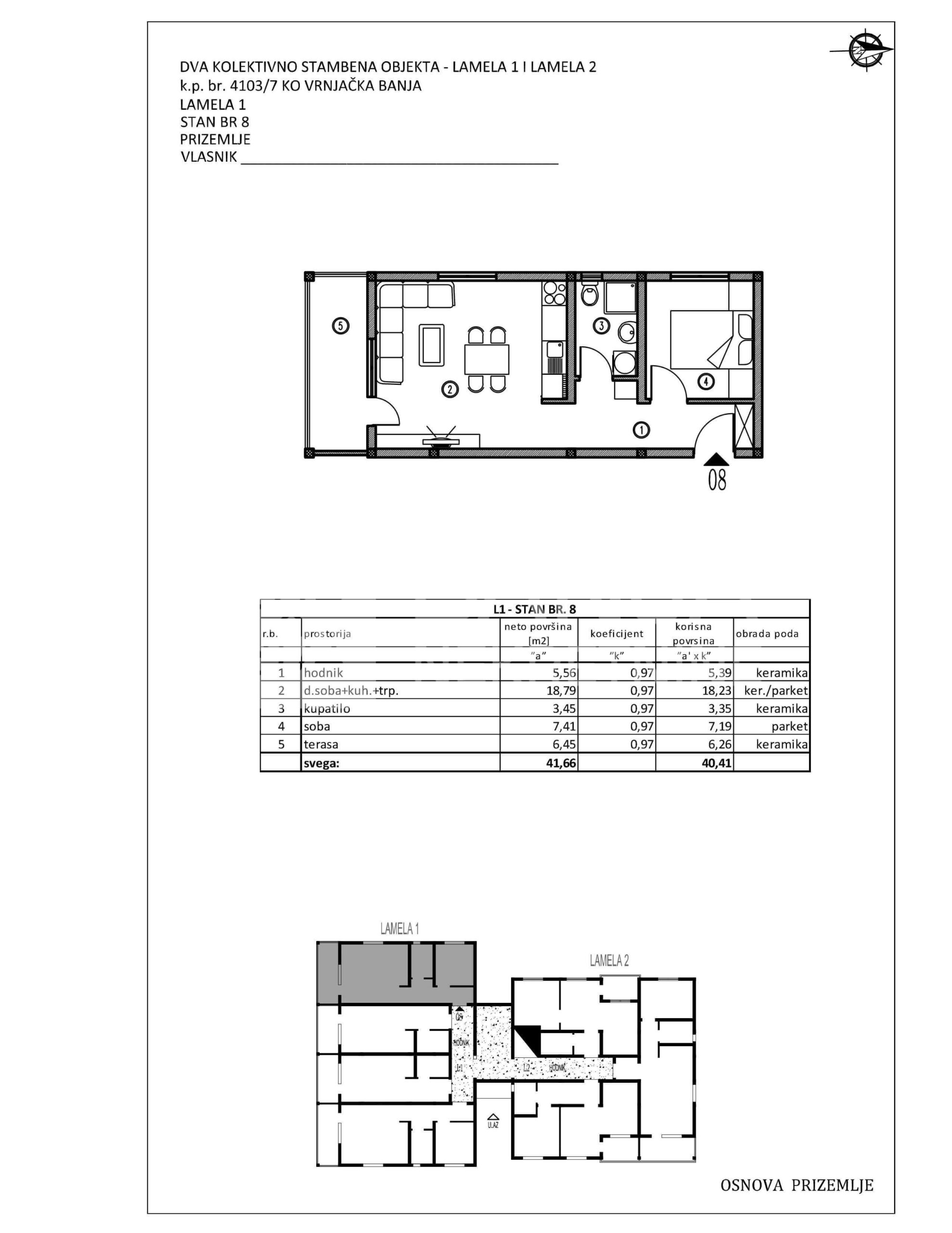
Sprat: prizemlje
Broj stana: 8
Povrsina: 41,66 m2
Struktura: dvosoban
slobodan
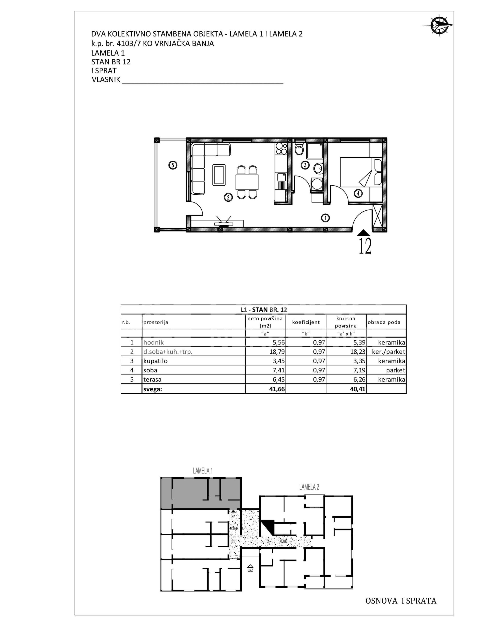
Sprat: prvi sprat
Broj stana: 12
Povrsina: 41,66 m2
Struktura: dvosoban
slobodan
Sprat: drugi sprat
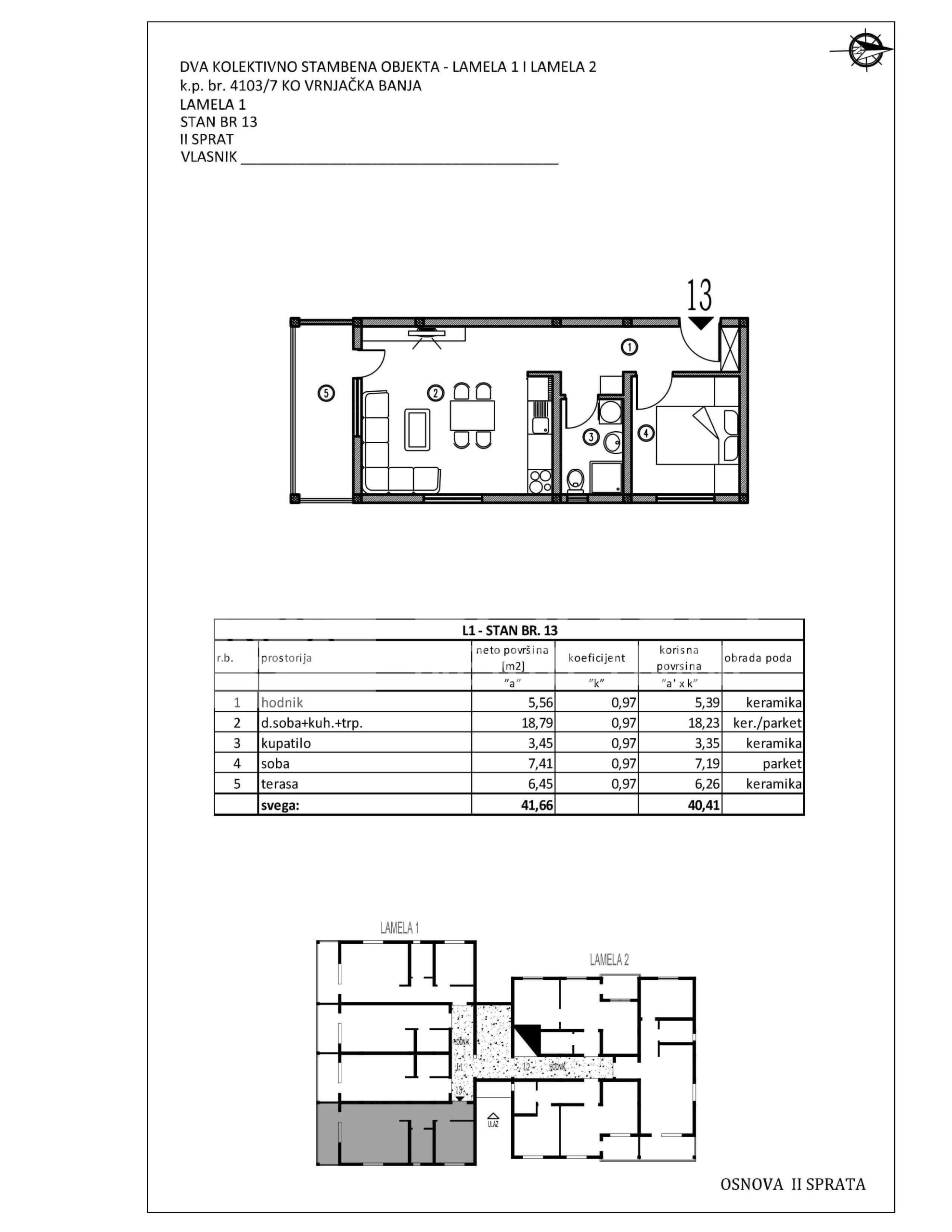
Broj stana: 13
Povrsina: 41,66 m2
Struktura: dvosoban
slobodan
Sprat: drugi sprat
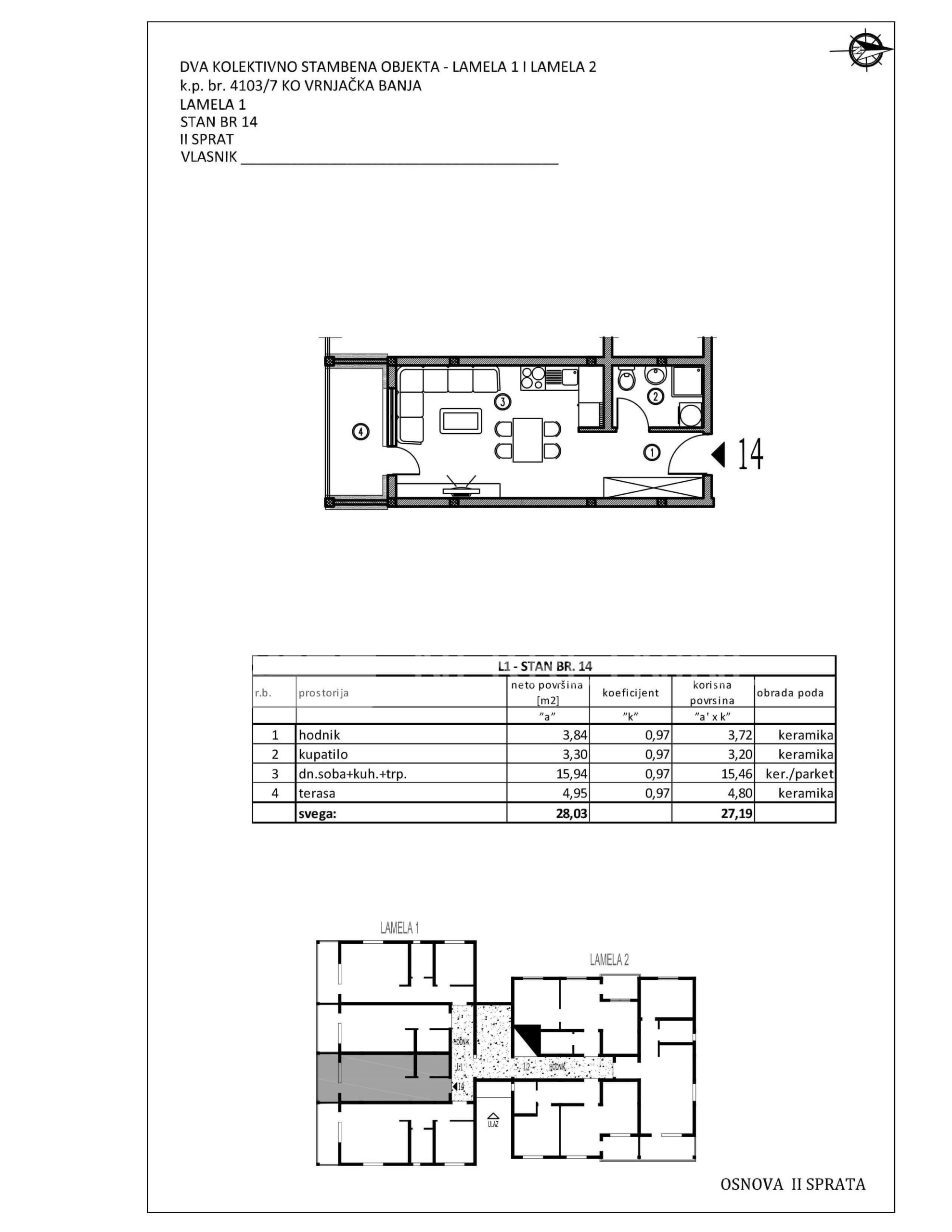
Broj stana: 14
Povrsina: 28,03 m2
Struktura: jednosoban
slobodan
Sprat: drugi sprat
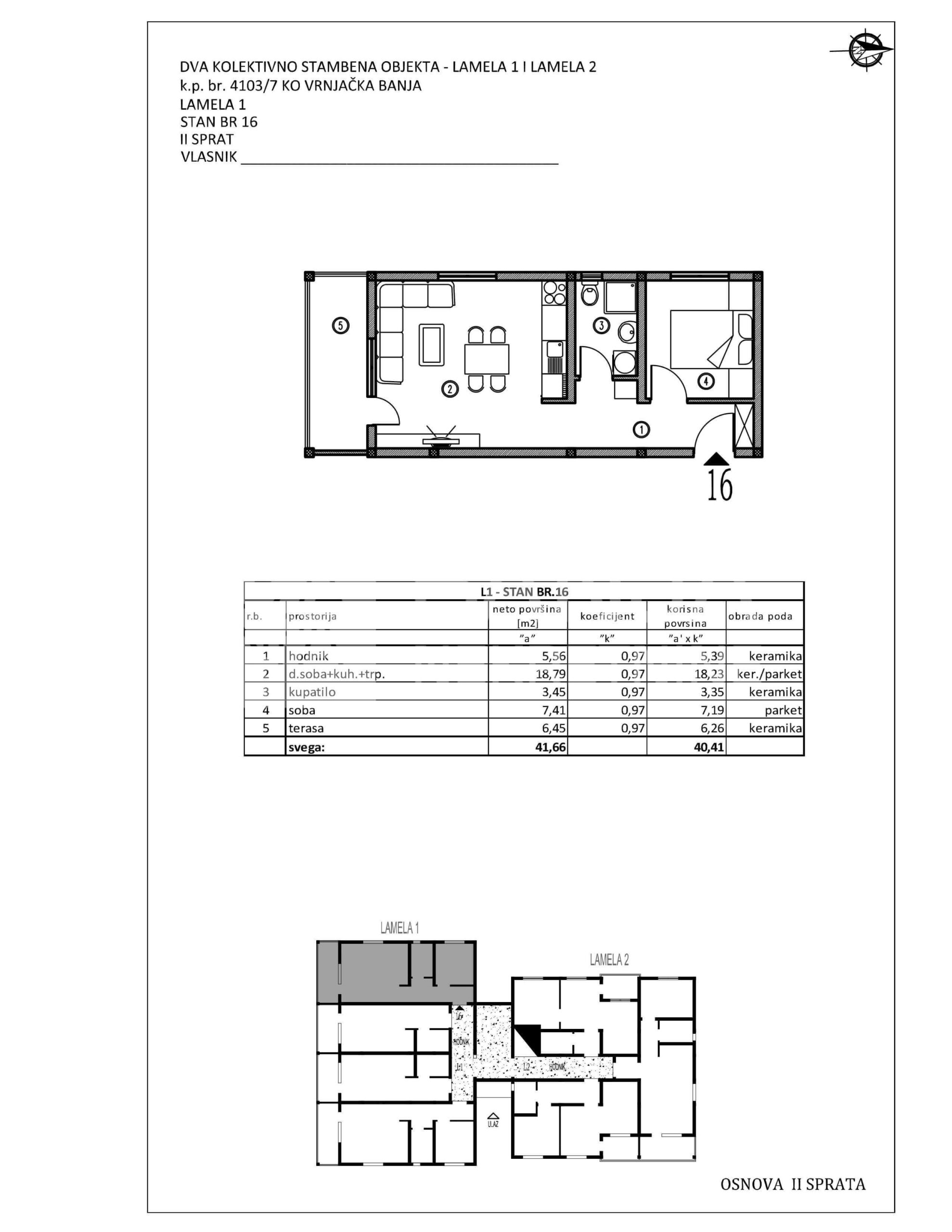
Broj stana: 16
Povrsina: 41,66 m2
Struktura: dvosoban
slobodan
Sprat Broj stana Povrsina Struktura Status Plan
suteren 1 41,29 m2 dvosoban slobodan Pogledaj
suteren 2 27,88 m2 jednosoban slobodan Pogledaj
suteren 3 27,88 m2 jednosoban slobodan Pogledaj
suteren 4 41,29 m2 dvosoban slobodan Pogledaj
prizemlje 7 28,03 m2 jednosoban slobodan Pogledaj
prizemlje 8 41,66 m2 dvosoban slobodan Pogledaj
prvi sprat 12 41,66 m2 dvosoban slobodan Pogledaj
drugi sprat 13 41,66 m2 dvosoban slobodan Pogledaj
drugi sprat 14 28,03 m2 jednosoban slobodan Pogledaj
drugi sprat 16 41,66 m2 dvosoban slobodan Pogledaj
Stambeni objekat 2
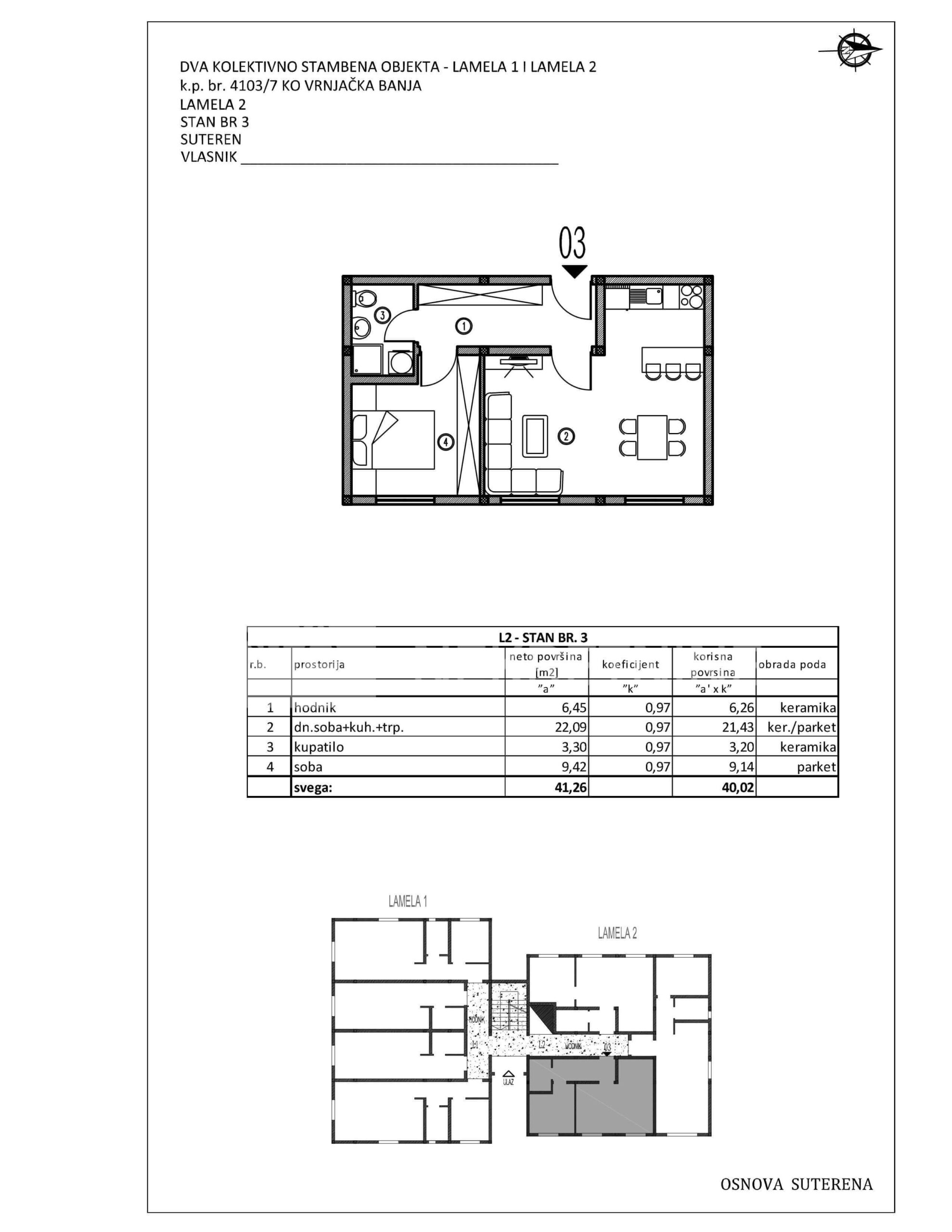
Sprat: suteren
Broj stana: 3
Povrsina: 41,26 m2
Struktura: dvosoban
slobodan
Sprat: prizemlje
Broj stana: 4
Povrsina: 38,19 m2
Struktura: dvosoban
slobodan
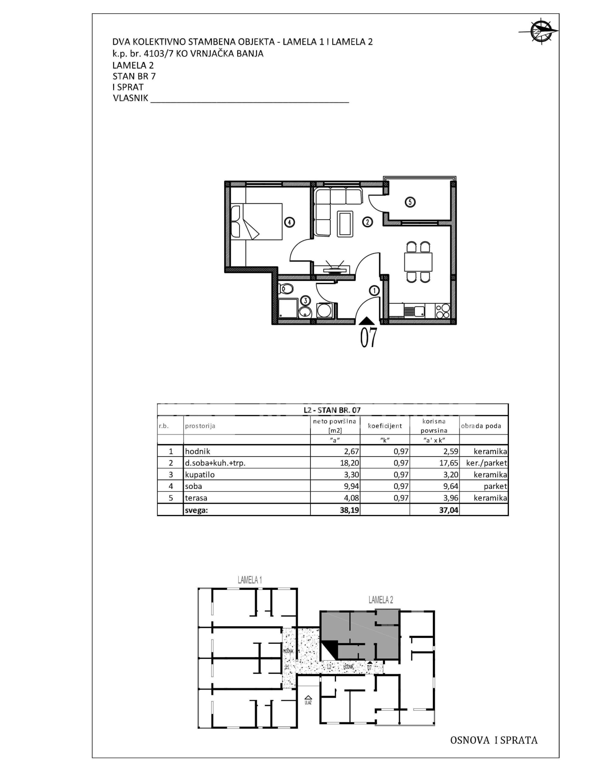
Sprat: prvi sprat
Broj stana: 7
Povrsina: 39,19 m2
Struktura: dvosoban
slobodan
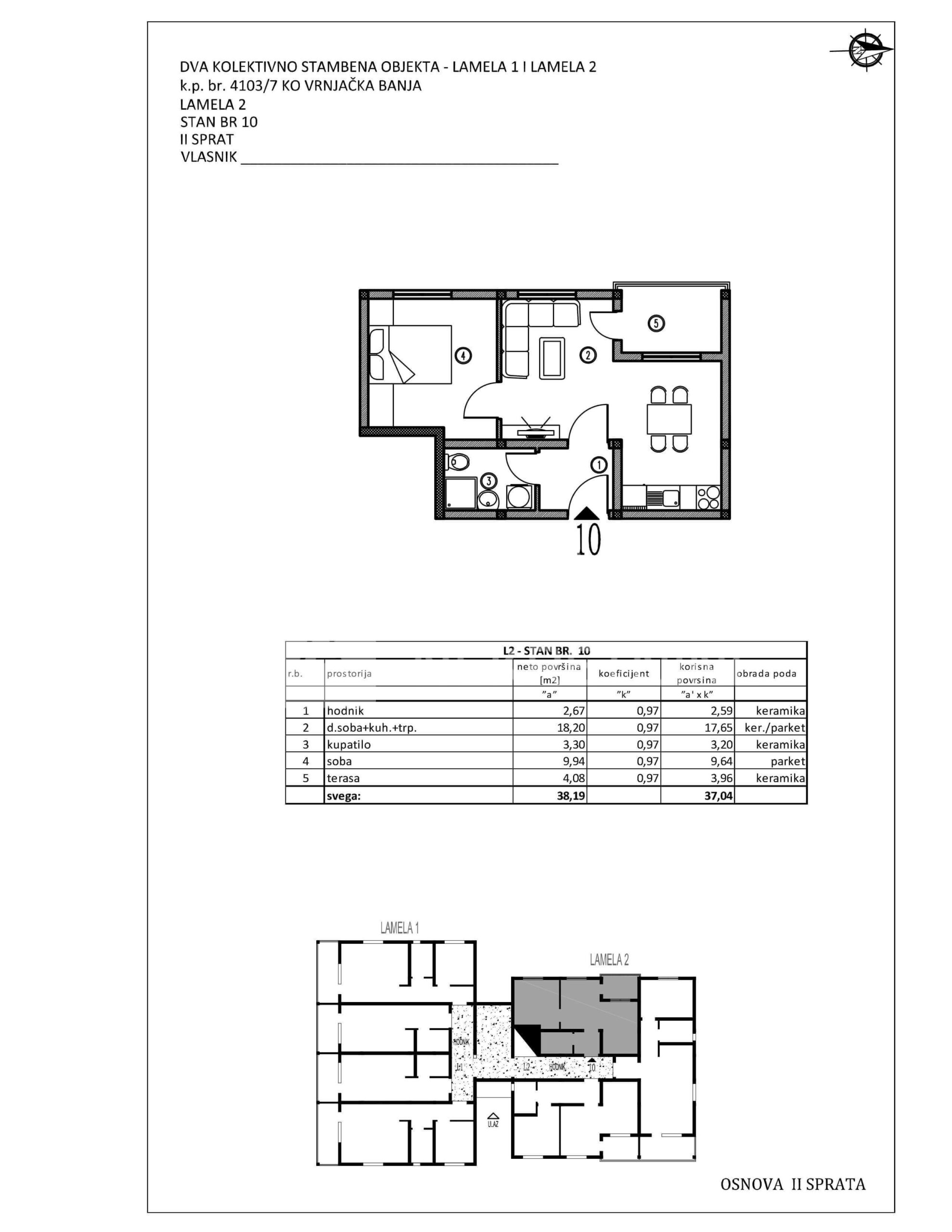
Sprat: drugi sprat
Broj stana: 10
Povrsina: 38,19 m2
Struktura: dvosoban
slobodan
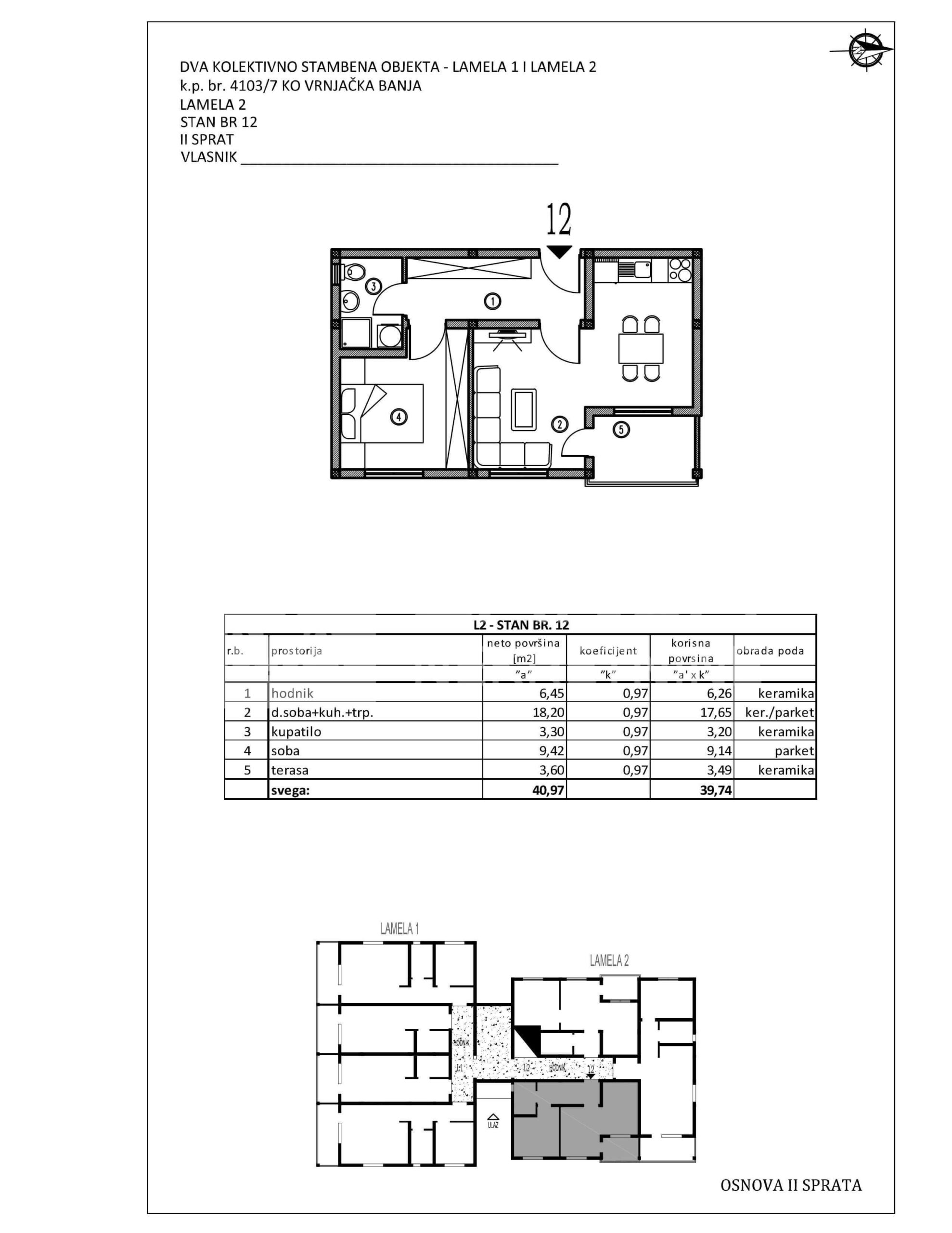
Sprat: drugi sprat
Broj stana: 12
Povrsina: 40,97 m2
Struktura: dvosoban
slobodan
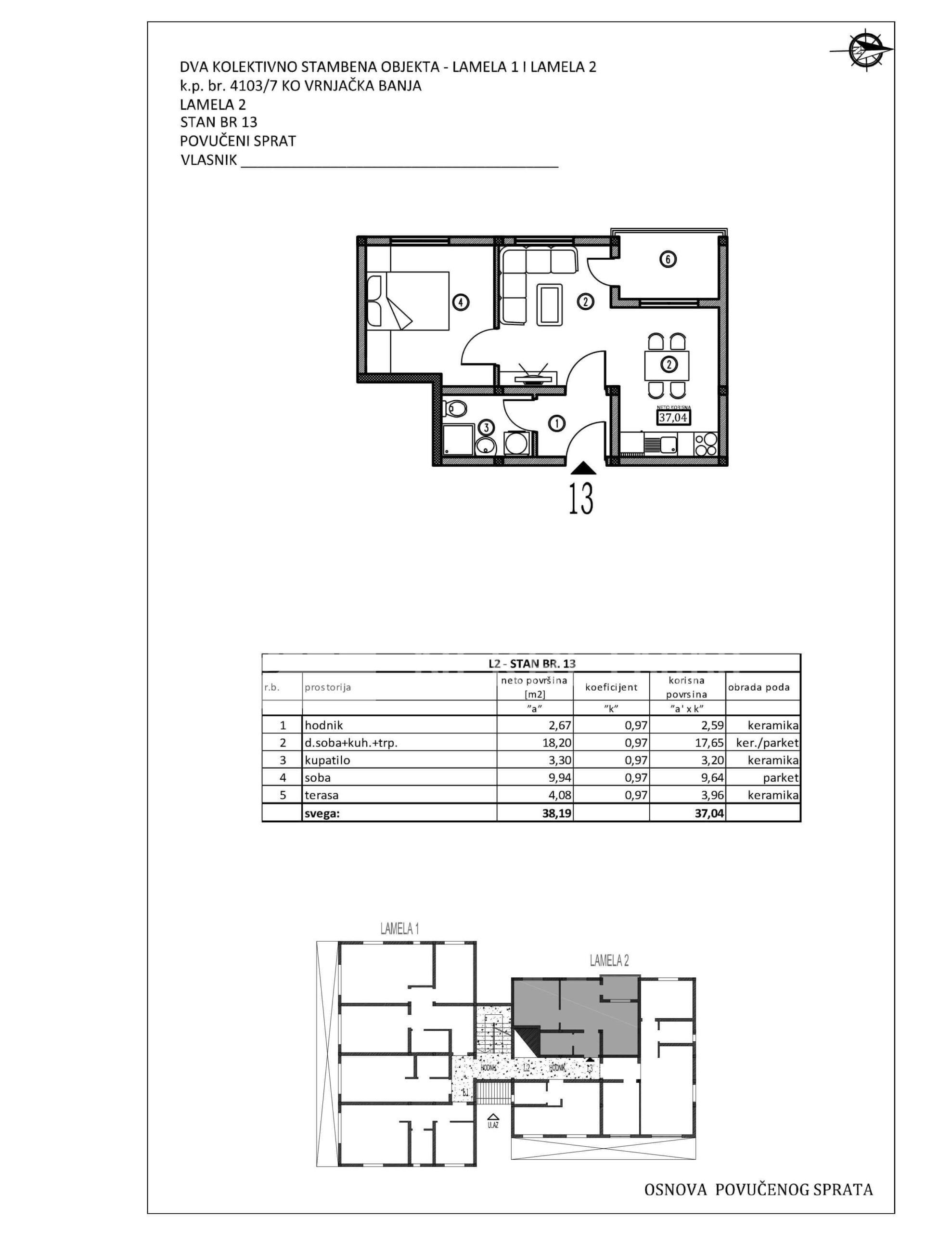
Sprat: povučeni sprat
Broj stana: 13
Povrsina: 38,19 m2
Struktura: dvosoban
slobodan
Sprat Broj stana Povrsina Struktura Status Plan
suteren 3 41,26 m2 dvosoban slobodan Pogledaj
prizemlje 4 38,19 m2 dvosoban slobodan Pogledaj
prvi sprat 7 39,19 m2 dvosoban slobodan Pogledaj
drugi sprat 10 38,19 m2 dvosoban slobodan Pogledaj
drugi sprat 12 40,97 m2 dvosoban slobodan Pogledaj
povučeni sprat 13 38,19 m2 dvosoban slobodan Pogledaj
Vila Borovi

Luksuz nije stvar kvadrata, već osećaja

Ovde ne kupujete stan – kupujete prostor u kome život postaje stil a vi deo te priče.

Ne propustite priliku da postanete deo ovog stambenog kompleksa.

Pogledaj ponudu

Kontaktirajte nas putem broja telefona +381 65 406 5019