Banja Nekretnine

Vila Dr Milovan

POSLOVNO-STAMBENI OBJEKAT
Vila Dr Milovan
Nadomak centra Vrnjačke Banje, samo 200 metara od čuvenog “Vrapca”, planirana je izgradnja stambeno-poslovnog objekta, vile Dr Milovan. Dobra infrastruktura, blizina Doma Zdravlja, pošte, banke, zelene pijace, prodavnica prehrambene robe i ostale robe, čini ovu lokaciju idealnom za porodice sa decom i za Ijude starijeg doba. Za one koji su u potrazi za domom u kojem će njihova porodica imati sve udobnosti, velika je prednost što je na dohvat ruke sve što je potrebno za dobro izbalansiran život.
Inspirisani živopisnim pejzažem “kraljice srpskog turizma” i čuvenim vrnjačkim doktorom Petkovićem, kreirali smo viziju Vašeg sigurnog mesta neprikosnovene udobnosti i sofisticiranog luksuza.
Lokacija

PRODAVNICA 50m TERETANA 800m OSNOVNA ŠKOLA 700m OPŠTINSKA UPRAVA 50m PIJACA 50m
Opremljenost i tehničke karakteristike

Arhitektonsko-građevinski radovi

  • Aluminijumska spoljna stolarija marke Alumil ili sličnog kvaliteta;
  • Ulazna vrata u apartmane – sigurnosna vrata marke Bosal, Atos ili sličnog kvaliteta;
  • Drvena sobna vrata ispunjena ekstrudiranom ivericom debljine 32mm, završno obložena MDF-om бmm;
  • Španska ili italijanska granitna keramika 1 klase;
  • Hrastov parket 22mm debljine;
  • Воја zidova i plafona polu disperzija bela 9010;
  • Demit fasada termoizolovana stiroporom d=15cm sa oblogama od keramike;
  • Ravan neprohodan krov sa slojevima termoizolacije i završne hidroizolacije;

Vodovod i kanalizacija

  • Sanitarije renomiranog proizvođača tipa Geberit, Hasngrohe, Асо, Herz ili sličnog kvaliteta;
  • Bojler Ariston, Termorad ili sličnog kvaliteta;

Elektroenergetske instalacije

  • Razvodna tabla i oprema unutar razvodne table tipa Schneider, Schrack, ili sL.
  • Galanterija tipa Legrand ili sL.

Klimatizacija, ventilacija, grejanje i hlađenje

  • Renomiranog proizvođača LG tipa split jednice ili multi split jedinice;
  • Radijatori sa električnim grejačem – norveški radijatori.
Poslovni prostori u ponudi
Povrsina: 30,47 m2
Struktura: dvosoban
prodat
Povrsina: 31,99 m2
Struktura: dvosoban
prodat
Povrsina: 23,40 m2
Struktura: dvosoban
prodat
Povrsina Struktura Status Plan
30,47 m2 dvosoban prodat Pogledaj
31,99 m2 dvosoban prodat Pogledaj
23,40 m2 dvosoban prodat
Stanovi u ponudi
Sprat: prvi sprat
Broj stana: 1
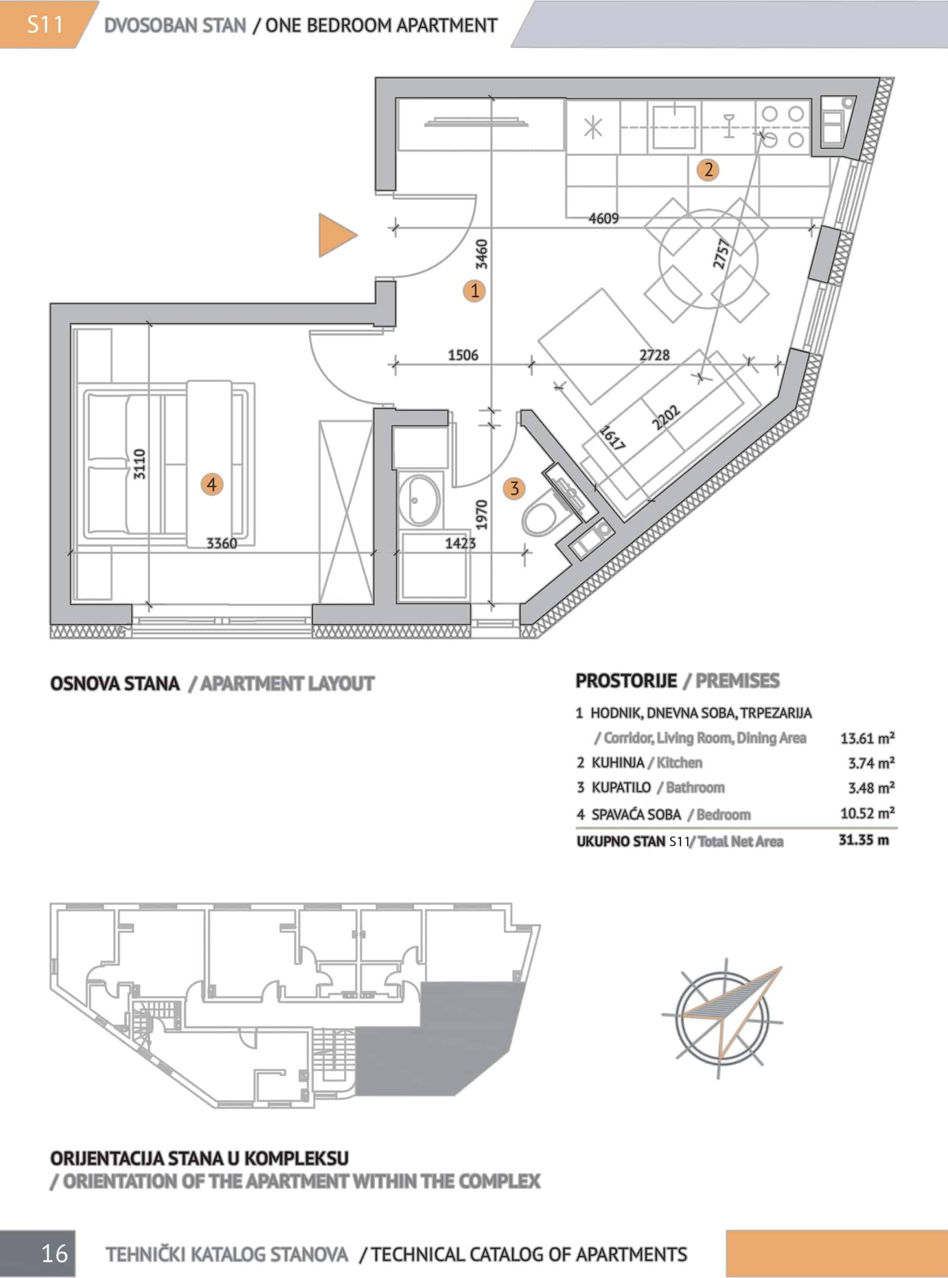
Povrsina: 31,35 m2
Struktura: dvosoban
prodat
Sprat: prvi sprat
Broj stana: 2
Povrsina: 35,49 m2
Struktura: dvosoban
prodat
Sprat: prvi sprat
Broj stana: 3
Povrsina: 36,51 m2
Struktura: dvosoban
prodat
Sprat: prvi sprat
Broj stana: 4
Povrsina: 39,55 m2
Struktura: dvosoban
prodat
Sprat: prvi sprat
Broj stana: 5
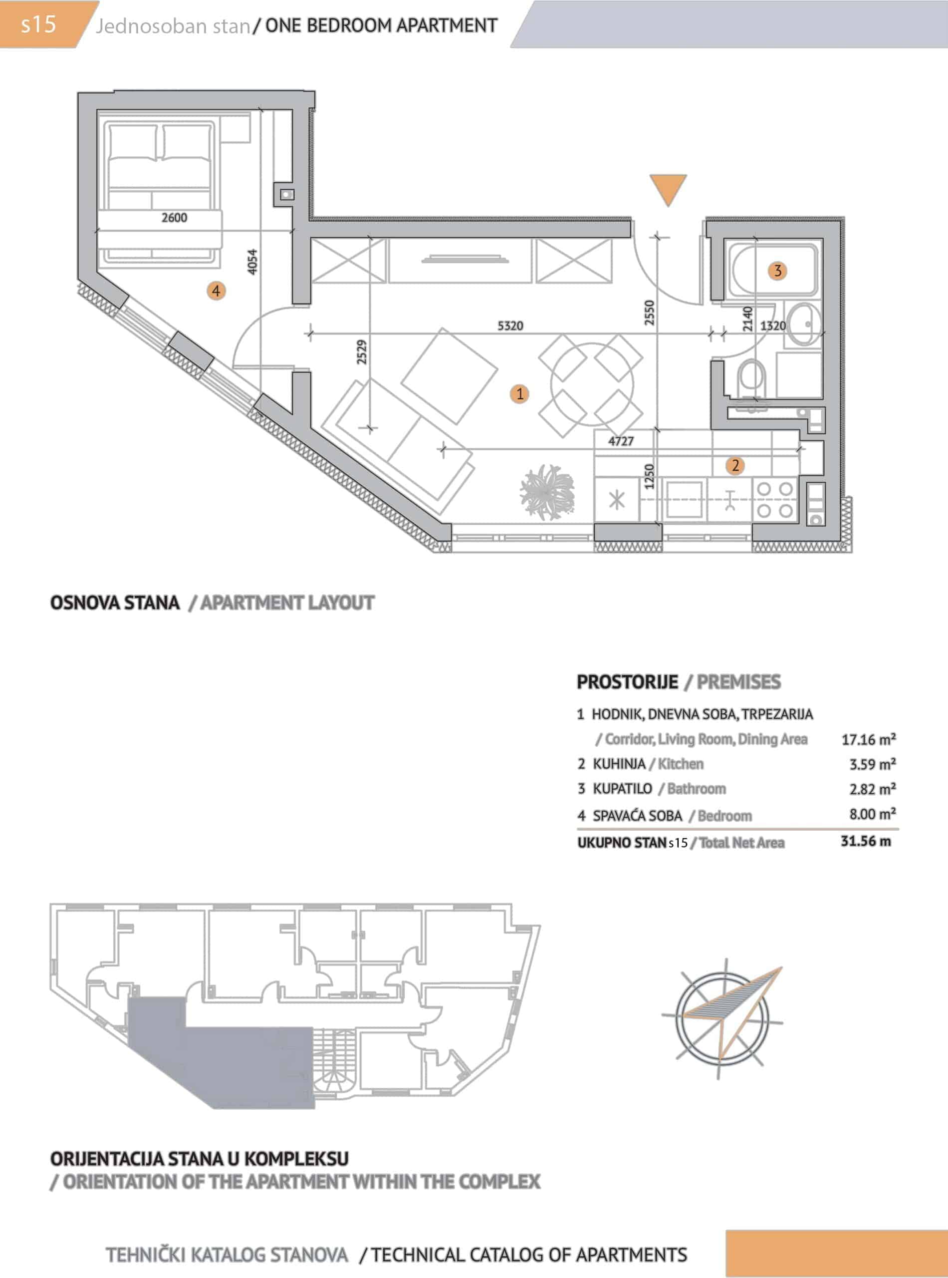
Povrsina: 31,56 m2
Struktura: dvosoban
prodat
Sprat: drugi sprat
Broj stana: 6
Povrsina: 31,35 m2
Struktura: dvosoban
prodat
Sprat: drugi sprat
Broj stana: 7
Povrsina: 35,49 m2
Struktura: dvosoban
prodat
Sprat: drugi sprat
Broj stana: 8
Povrsina: 36,51 m2
Struktura: dvosoban
prodat
Sprat: drugi sprat
Broj stana: 9
Povrsina: 39,55 m2
Struktura: dvosoban
prodat
Sprat: drugi sprat
Broj stana: 10
Povrsina: 31,56 m2
Struktura: dvosoban
prodat
Sprat: povučeni sprat
Broj stana: 11
Povrsina: 31,35 m2
Struktura: dvosoban
prodat
Sprat: povučeni sprat
Broj stana: 12
Povrsina: 35,17 m2
Struktura: jednosoban
reservisan
Sprat: povučeni sprat
Broj stana: 13
Povrsina: 36,53 m2
Struktura: jednosoban
reservisan
Sprat: povučeni sprat
Broj stana: 14
Povrsina: 38,99 m2
Struktura: dvosoban
reservisan
Sprat: povučeni sprat
Broj stana: 15
Povrsina: 31,56 m2
Struktura: dvosoban
prodat
Sprat Broj stana Povrsina Struktura Status Plan
prvi sprat 1 31,35 m2 dvosoban prodat
prvi sprat 2 35,49 m2 dvosoban prodat
prvi sprat 3 36,51 m2 dvosoban prodat
prvi sprat 4 39,55 m2 dvosoban prodat
prvi sprat 5 31,56 m2 dvosoban prodat
drugi sprat 6 31,35 m2 dvosoban prodat
drugi sprat 7 35,49 m2 dvosoban prodat Pogledaj
drugi sprat 8 36,51 m2 dvosoban prodat
drugi sprat 9 39,55 m2 dvosoban prodat
drugi sprat 10 31,56 m2 dvosoban prodat Pogledaj
povučeni sprat 11 31,35 m2 dvosoban prodat Pogledaj
povučeni sprat 12 35,17 m2 jednosoban reservisan Pogledaj
povučeni sprat 13 36,53 m2 jednosoban reservisan Pogledaj
povučeni sprat 14 38,99 m2 dvosoban reservisan Pogledaj
povučeni sprat 15 31,56 m2 dvosoban prodat Pogledaj
Vila Borovi

Luksuz nije stvar kvadrata, već osećaja

Ovde ne kupujete stan – kupujete prostor u kome život postaje stil a vi deo te priče.

Ne propustite priliku da postanete deo ovog stambenog kompleksa.

Pogledaj ponudu

Kontaktirajte nas putem broja telefona +381 65 406 5019